Three Bedroom New Construction Home Sioux Falls
If you’re in the market for a new construction home in Sioux Falls, South Dakota, the Brookshire III Villa in Galway Village should be at the top of your list. This charming three-bedroom villa offers a blend of modern convenience and classic style, making it the perfect choice for families, retirees, or anyone seeking a comfortable, low-maintenance lifestyle.
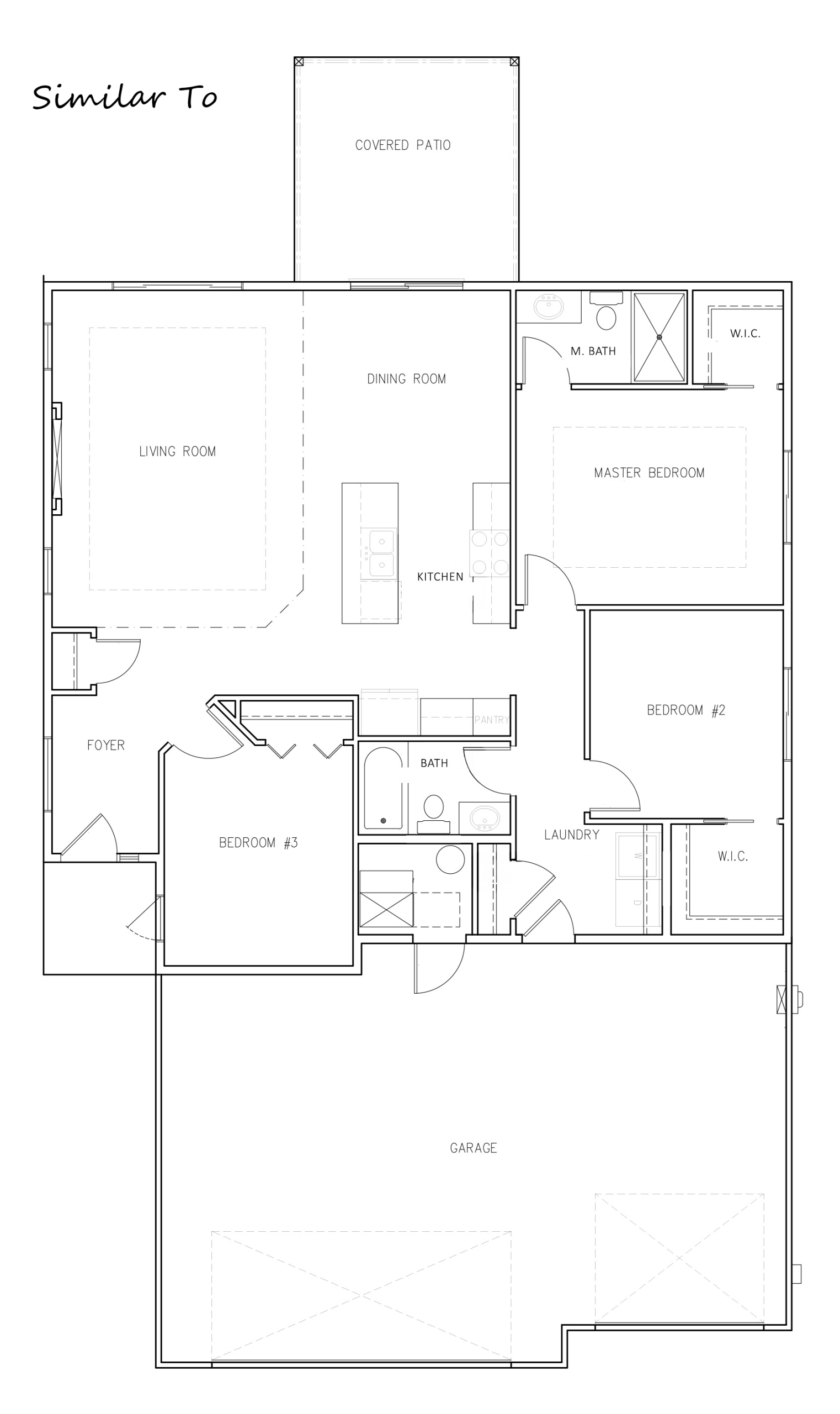
The Brookshire III Villa: New Build Home Sioux falls
The Brookshire III Villa is a beautifully designed single-level ranch home that offers both style and functionality. With three spacious bedrooms and two well-appointed bathrooms, this home provides everything you need for relaxed living. The open floor plan seamlessly connects the kitchen, dining, and living areas, making it perfect for entertaining or simply enjoying day-to-day life.
The kitchen, with its generous space, is a dream for any home cook, featuring plenty of counter and storage space. The master bedroom is a true retreat layered with added luxury and convenience.
Whether you’re hosting guests or enjoying a quiet night in, the Brookshire III Villa offers the perfect setting in the Sioux Empire area.
Related New Construction Homes
New Two Bedroom Home For Sale in Sioux Falls, SD
New Two Bedroom House For Sale in Sioux Falls, SD
New Two Bedroom Home For Sale in Harrisburg, SD















